建物は、久米島の気候や自然と調和する設計に。
屋内でも久米島とつながり、心ほどける体験を。
BASIC INFORMATION
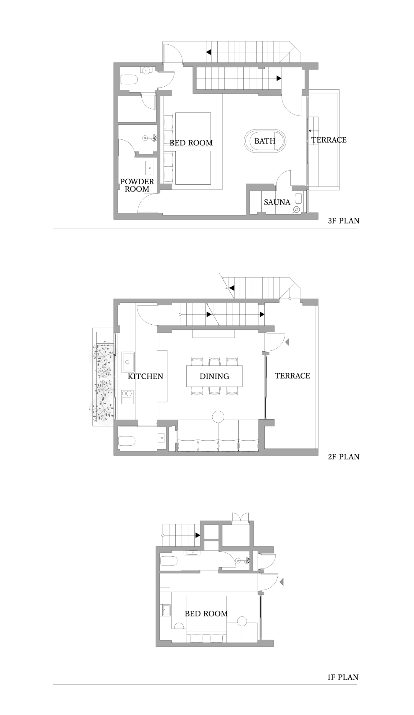
- 定員
- 1〜6名
- ベットタイプ
- 1F:クイーンベッド1台
3F:ダブルベッド2台 あり - 設備・備品
- Wi-Fi、サウナ、冷蔵庫、冷凍庫、洗濯機、衣類乾燥機、テレビ、ドライヤー、電子レンジ、トースター、電気ケトル、ベビーチェア、調理器具一式、各種アメニティ類
建物は、久米島の気候や自然と調和する設計に。
屋内でも久米島とつながり、心ほどける体験を。

刻々と移りかわる久米島の表情を映しだす、斬新なバス&ベッドルーム。

最新家電と、選び抜いた家具たち。贅沢な非日常を一部屋に詰めて。

ゆったりとしたクイーンサイズベッドで、癒しの夜を。

久米島を切り取った絵画のような風景を眺めながら、心までととのうサウナ体験。

久米島の風を感じ、まとい、心を開けはなつひとときのために。

細部まで、人にも久米島にもやさしいものを。











バスタオル、フェイスタオル、歯ブラシ、スリッパ
ヘアブラシ、ボディタオル、コットンパフセット、コーヒー
シャンプー、トリートメント、ボディーソープ、
ドライヤー
エアコン、洗濯機、衣類乾燥機、ベビーチェア、Bluetoothスピーカー、殺虫剤、虫除けスプレー、懐中電灯、延長コード、消毒液、絆創膏
カトラリー(箸、ナイフ、フォーク、スプーン)、
皿、マグカップ、グラス、電子レンジ、トースター、
IHコンロ、冷蔵庫、冷凍庫、電気ケトル、炊飯器、栓抜き付きワインオープナー、アイスクーラー、包丁、まな板、調理器具一式、ラップ、アルミホイル、塩、胡椒、ハンドソープ、食器用洗剤、スポンジ、ゴミ袋